Cải tạo căn hộ – Garden Court Residence, Quận 7 – Tối ưu công năng & Cá nhân hóa không gian sống
Cải tạo căn hộ 3 phòng tại Quận 7, tập trung tái tổ chức công năng và mở rộng không gian phòng ngủ master với khu vực tủ đồ tiện nghi, sang trọng, đồng thời cá nhân hóa trải nghiệm sống theo nhu cầu gia chủ
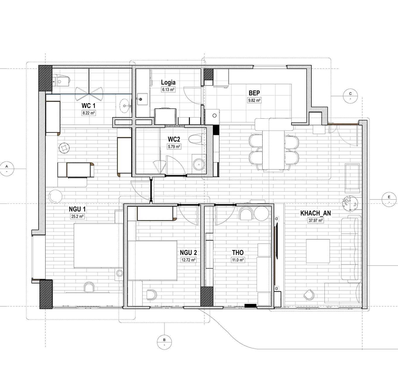
Dự án cải tạo căn hộ 3 phòng
Địa chỉ: Garden Court Residence, Quận 7
Hoàn thành thiết kế: 2026
Diện tích: 130 m²
Được định hướng như một quá trình tái cấu trúc không gian nhằm nâng cao chất lượng sống thông qua việc tối ưu công năng và cá nhân hóa trải nghiệm sử dụng. Thay vì giữ nguyên mặt bằng ban đầu, thiết kế tập trung điều chỉnh lại bố cục để phù hợp hơn với nhu cầu sinh hoạt thực tế của gia chủ, đồng thời tạo ra sự liên kết mạch lạc giữa các không gian.
Điểm nhấn chính của dự án là việc mở rộng phòng ngủ master, tích hợp khu vực tủ đồ rộng rãi với khả năng tiếp cận thuận tiện và cảm giác sử dụng cao cấp. Không gian này được xử lý như một phần mở rộng của phòng ngủ, nơi yếu tố lưu trữ không chỉ đáp ứng công năng mà còn góp phần định hình trải nghiệm sống riêng tư và tinh tế.
Ngôn ngữ thiết kế hướng đến sự hiện đại, tiết chế và linh hoạt, cho phép mỗi khu vực trong căn hộ phản ánh rõ nét nhu cầu và cá tính của người sử dụng. Thông qua việc lựa chọn vật liệu, ánh sáng và tổ chức không gian, dự án mang lại một tổng thể hài hòa giữa thẩm mỹ, công năng và tính cá nhân hóa trong không gian sống đô thị
.png)
.png)
.png)
.png)
.png)
.png)
.png)
.png)
.png)

.png)

.png)
.png)
.png)
.png)
.png)
.png)
.png)
.png)